歡迎您進入合肥國瑞集成建筑科技有限公司官網!
-
-
-
-
-
-
技術研發近年來,公司不斷加大研發投入,研發費用比例高達12.5%。花數百萬元配備了先進齊全的科研設備,設立了企業研發中心。公司積極引進人才和先進技術,從強化人才培養、強化科技創新、強化產品研發、強化產品質量入手,全面提升企業競爭力。公司科研團隊先后引進了鋼結構裝配式建筑領域知名專家丁成章教授等高端人才,全力打造一流科研創新團隊
-
建筑體系冷彎型鋼結構體系是一種密肋型板墻體系,源于輕木結構。該體系以“肋”(間距一般為400~600 mm的冷彎型鋼墻柱、樓蓋梁和屋蓋梁)承受重力荷載并要求上下對齊直接傳遞重力荷載,以“板”(各類剪力墻板)抵抗由地震荷載和風荷載產生的側向作用力
-
工程案例
聯系方式
390㎡農莊游客接待中心建造過程賞析
基本信息
占地尺寸:31.34m×9m
建造面積:390.96㎡
主體結構:裝配式鋼結構
建造層數:2層
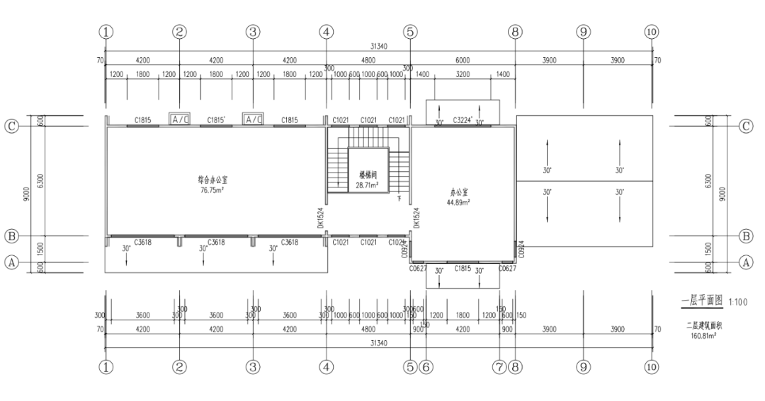
一層平面
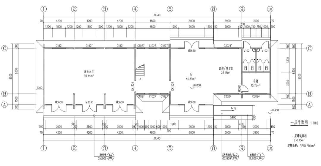
二層平面
主體建造
基礎施工
吊裝鋼柱鋼梁
吊裝鋼柱鋼梁
一層墻板吊裝
樓面壓型鋼板鋪設
二層墻板吊裝
屋架吊裝
屋面板
防水鋪設
屋面瓦鋪設
主體完工
室內外裝修
貼內墻磚
地磚鋪設
內墻板安裝
樓梯
窗戶
吊頂
燈具
室內實拍
室內實拍
外墻真石漆
正面實拍
背面實拍
手機網站
微信公眾號