歡迎您進入合肥國瑞集成建筑科技有限公司官網!
-
-
-
-
-
-
技術研發近年來,公司不斷加大研發投入,研發費用比例高達12.5%。花數百萬元配備了先進齊全的科研設備,設立了企業研發中心。公司積極引進人才和先進技術,從強化人才培養、強化科技創新、強化產品研發、強化產品質量入手,全面提升企業競爭力。公司科研團隊先后引進了鋼結構裝配式建筑領域知名專家丁成章教授等高端人才,全力打造一流科研創新團隊
-
建筑體系冷彎型鋼結構體系是一種密肋型板墻體系,源于輕木結構。該體系以“肋”(間距一般為400~600 mm的冷彎型鋼墻柱、樓蓋梁和屋蓋梁)承受重力荷載并要求上下對齊直接傳遞重力荷載,以“板”(各類剪力墻板)抵抗由地震荷載和風荷載產生的側向作用力
-
工程案例
聯系方式
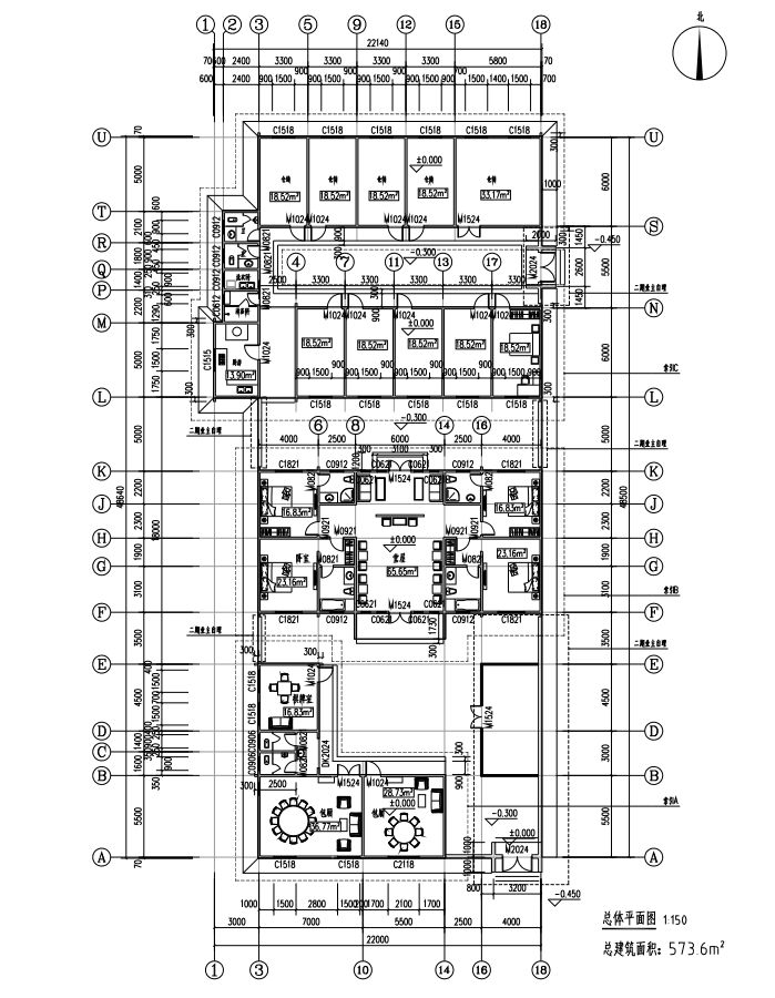
574㎡裝配式徽派建筑風格生態園接待中心設計案例賞析
“青磚小瓦馬頭墻,回廊掛落花格窗。夢里水鄉芳綠野,玉謫伯虎慰蘇杭。”徽派建筑作為中國古建筑中最重要的流派之一,以黛瓦、粉壁、馬頭墻為主要特征,以磚雕、木雕、石雕為裝飾,集山水之靈氣,深居簡出,不求富麗堂皇,只求寧靜致遠。今天跟大家分享一款574㎡國瑞裝配式徽派建筑風格生態園接待中心設計案例。
基本信息
占地:48.64米×22米
建筑面積:574平方米
主體結構:裝配式鋼結構
設計效果圖
馬頭翹角,墻面和馬頭高低進退錯落有致,青山﹑綠水白墻﹑黛瓦富于美感的外觀整體性,在質樸中透著清秀。
較靈活的多進院落式布局。建筑平面布局按功能﹑規模﹑地形靈活布置富有韻律感。
平面圖
功能:廚房、包廂、衛生間、倉儲、臥室、棋牌室等
多方位視角圖
裝修參考圖
辦公室
會議室
客房
目前,大多仿古建筑依然是以木質材料、鋼筋混凝土為主體結構的古建筑形式,不能完全實現由工廠生產構件現場安裝的現代方式建造。近年來,國瑞公司致力于開發裝配式徽派建筑系列產品,形成了標準化設計、工廠化生產、裝配化施工、一體化裝修、信息化管理新型鋼結構裝配式仿古建筑技術體系,裝配式仿古建筑在保留傳承古建筑風貌的同時,也能較好的發揮裝配式建筑本身抗震、節能、建造速度快等諸多優勢。
手機網站
微信公眾號